Trilocale in vendita

Recanati, Via della Resistenza
€ 78.000
Prezzo aggiornato
3 locali 3 locali
53 Mq 53 Mq
2 bagni 2 bagni

Trilocale in vendita

Recanati, Via della Resistenza

Descrizione annuncio

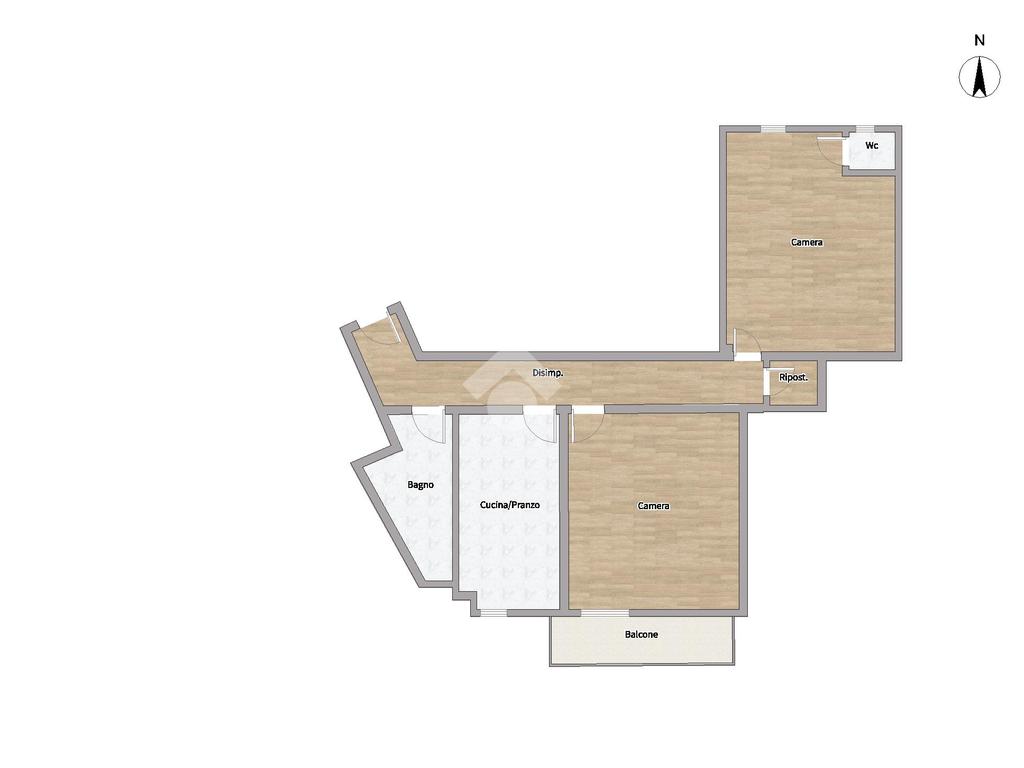
Proponiamo in vendita un accogliente appartamento situato al primo piano di uno stabile in Via Della Resistenza a Recanati.

La zona si distingue per la posizione strategica, un ambiente tranquillo e ben servito, con un'ampia gamma di servizi che soddisfano le esigenze quotidiane.

L'appartamento presenta una zona pranzo-cucina, due ampie e luminose camere matrimoniali, una delle quali con accesso al balcone e l'altra con la predisposizione per un bagno di servizio privato. Il bagno principale è finestrato e dotato di vasca. Un comodo ripostiglio permette di organizzare al meglio la casa e ottimizzare lo spazio disponibile.

A seconda delle proprie esigenze è possibile utilizzare una delle camere come soggiorno, rendendo questo appartamento un comodo bilocale.

Questa proprietà degli anni '60, rappresenta un'opportunità ideale per chi desidera personalizzare e riammodernare la propria casa secondo i propri gusti.

Completa la soluzione una cantina, perfetta per lo stoccaggio di oggetti e attrezzature.

Seguici su Instagram e Facebook: 'Tecnocasa Porto Recanati'.
Hai bisogno di vendere per acquistare una nuova casa? Contattaci per una consulenza e valutazione gratuita e senza impegno allo 0710961918.

Mostra tutto

Nelle vicinanze

Ricariche auto elettriche Ricariche auto elettriche
Parcheggio Cimitero
350 m
Astea Parcheggio Centro Città 2.0
710 m
Scuole Scuole
Scuola Materna Villa Teresa
80 m
Scuola Primaria Lorenzo Lotto
80 m
Scuola San Vito
270 m
Asilo Fonti San Lorenzo
280 m
Scuola Bonifazi
340 m
Farmacia Farmacia
Desiderio
140 m
Farmacia Verdecchia
390 m
Parafarmacia
640 m
Poeti
650 m
Farmacia Recchioni
850 m
Ospedali Ospedali
Ospedale Recanati Santa Lucia
430 m
Supermercati Supermercati
Si con Te Villa Teresa
110 m
Tigotà
600 m
Biologicamente
640 m
Coal
840 m
EuroSpin
1,1 Km
Negozi Negozi
La Bottega Del Pane Panificio Manzotto
170 m
La Bottega del Buon Gusto
190 m
Fior Di Grano
230 m
Stilmoda
270 m
Nerea
520 m
Bar Bar
Gran Bar
170 m
Bar
320 m
Bar Caffé Dei Tre
320 m
Mister Caffè
320 m
Bar Vaghe Stelle
340 m
Ristoranti Ristoranti
Poesia a Tavola
170 m
Lo Spuntino
210 m
Osteria di Via Leopardi
220 m
Passero Solitario
290 m
La Torre Antica
510 m
Mostra tutto

Caratteristiche

Rif.:
61189061
Piano:
1 di 4 (Piano basso)
Balconi:
1
Camere da letto:
2
Arredamento:
Assente
Condizionamento:
Assente
Mostra tutto
Prezzo Prezzo
€ 78.000
Rata mutuo Rata mutuo
€ 368 / mese
Spese annue Spese annue
€ 200
Proponi il tuo prezzoProponi il tuo prezzo

Classe Energetica

G
G
G
G
G
G
G
G
G
EP invernale del fabbricato:
EP estiva del fabbricato:
Anno di costruzione:
1960
Riscaldamento:
Autonomo
Tipo impianto:
A radiatori
Tipo alimentazione:
Altro

Prezzo ridotto di €1 (12%%)

Ti interessa visionare l'immobile?

Fissa un appuntamento  Fissa un appuntamento

Richiedi informazioni

Clicca su Leggi per aprire l'informativa
* Questi campi sono obbligatori

Calcola il tuo mutuo

Semplice e senza impegno
Anticipo

( % )
Mutuo

( % )

pochi semplici passi

inserisci i tuoi dati
Questionario completato
Grazie per aver richiesto un appuntamento senza impegno con un nostro Consulente del Credito e Assicurativo.

Hai inserito correttamente tutti i dati necessari e a breve riceverai una e-mail con un link da convalidare per inviare i tuoi dati.
Affiliato
Servizi Immobiliari Conero Srl
Via Pastrengo, 5 62017 Porto Recanati (MC)

Il nostro staff


  • Gianluca Bugaro
    Collaboratore

  • Monicanunzia Barnabei
    Affiliata

  • Matteo Alessandro Ciocan
    Collaboratore

  • Vanessa Cingolani
    Collaboratrice

  • Filippo Di Stanislao
    Affiliato

  • Rosita Filippi
    Collaboratrice

  • Giuseppe Iela
    Affiliato

  • Cristian Regnicolo
    Collaboratore

  • Emanuele Strologo
    Collaboratore

  • Rachele Vecchioli
    Collaboratrice

  • Elena Colasante
    Affiliata
Via Pastrengo, 5 62017 Porto Recanati (MC)
Zona: Porto Recanati
Mostra su mappa
Affiliato
Servizi Immobiliari Conero Srl
Via Pastrengo, 5 62017 Porto Recanati (MC)

2026 Tecnocasa Franchising S.p.A. - P. IVA 08365160152 - Via Monte Bianco 60/A 20089 Rozzano (MI). Ogni agenzia ha un proprio titolare ed è autonoma. Privacy policy | Policy utilizzo | Cookie policy