Bilocale in vendita

Numana, Via Roma 12
€ 200.000
Prezzo aggiornato
2 locali 2 locali
57 Mq 57 Mq
2 bagni 2 bagni

Bilocale in vendita

Numana, Via Roma 12

Descrizione annuncio

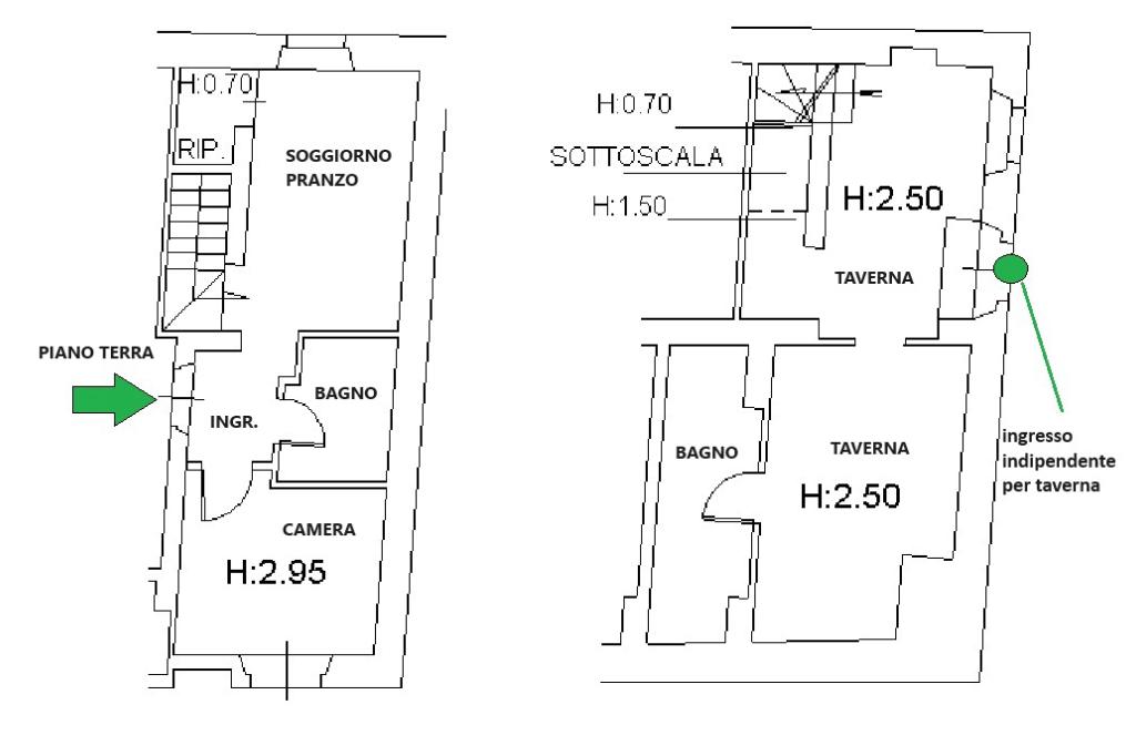
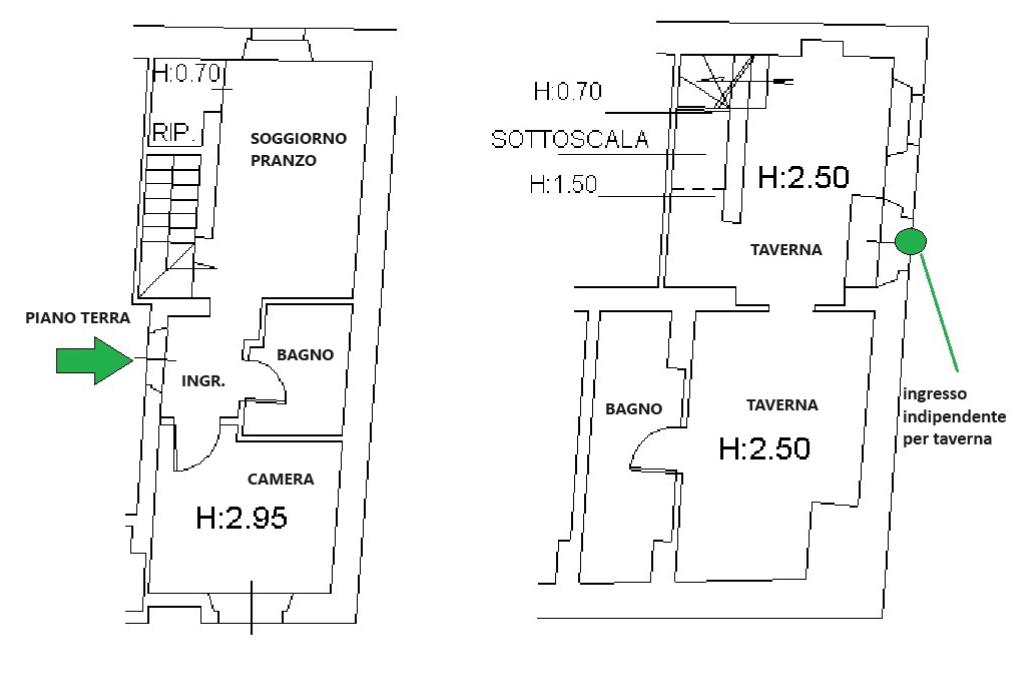
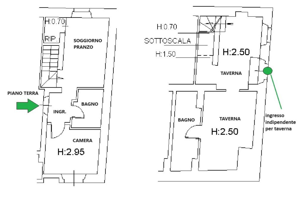
Questo incantevole appartamento nel cuore di Numana è un'opportunità straordinaria nel mercato immobiliare locale. Situato al piano terra di un affascinante palazzo nel centro storico di via Roma, fa parte di un edificio con soli cinque appartamenti, garantendo un'atmosfera intima ed esclusiva. Senza spese condominiali e completamente ristrutturato nel 2006, questa proprietà offre comfort e praticità. Possibile cambio destinazione d'uso in locale commerciale.

Le sue caratteristiche, come l'accogliente ingresso, il soggiorno con angolo cottura, la camera da letto matrimoniale e il bagno con doccia, lo rendono un luogo accogliente e funzionale per chiunque sia alla ricerca di una casa in una posizione privilegiata. Inoltre, la presenza di una taverna al piano inferiore, composta da due vani e un secondo bagno, aggiunge un tocco di originalità e spaziosità a questa proprietà. La taverna ha anche un ingresso separato, offrendo un accesso comodo e indipendente.

Con dettagli come il riscaldamento autonomo, gli infissi in doppio vetro, il portoncino blindato e i solai rivestiti in legno e pietra a vista, questo appartamento fonde in modo armonioso comfort moderno e tradizione storica.

Seguici su Instagram e Facebook: 'Tecnocasa Porto Recanati'.
Hai bisogno di vendere per acquistare una nuova casa? Contattaci per una consulenza e valutazione gratuita e senza impegno allo 0710961918.

Presso la nostra agenzia, con l'aiuto di Kiron, offriamo:
-Mutui per acquisto prima o seconda casa
-Finanziamenti
-Sostituzione del mutuo con condizioni migliori.

Mostra tutto

Nelle vicinanze

Trasporto pubblico Trasporto pubblico
Trasporto pubblico
320 m
Ricariche auto elettriche Ricariche auto elettriche
Numana Parcheggio Piazzale Adriatico | EnelX
320 m
Sirolo Municipio | EnelX
570 m
Sirolo Peschiera | EnelX
710 m
Sirolo Bosco | EnelX
960 m
Sirolo Cilea | EnelX
1,2 Km
Scuole Scuole
Scuole
160 m
Farmacia Farmacia
Farmacia
100 m
Farmasalute
2,5 Km
Supermercati Supermercati
Centro Commerciale "Azzurra"
140 m
Simply Market
1,4 Km
Si con te
1,8 Km
Negozi Negozi
Casali Rossana
120 m
Negozi
140 m
Qui Alimentari
170 m
Macelleria del Corso
1,0 Km
Il cantuccio
1,5 Km
Bar Bar
Laboratorio del gusto
1,4 Km
Bagno 25
2,2 Km
Ristoranti Ristoranti
La Fenice
80 m
Lo Scottadito
100 m
Ricci pescato & fritto
200 m
Numana e Margherita
230 m
Casa Rapisarda
240 m
Mostra tutto

Caratteristiche

Rif.:
61117535
Piano:
Basso di 3
Totale piani:
3
Camere da letto:
1
Arredamento:
Assente
Condizionamento:
Assente
Mostra tutto
Prezzo Prezzo
€ 200.000
Rata mutuo Rata mutuo
€ 950 / mese
Spese annue Spese annue
€ 0
Proponi il tuo prezzoProponi il tuo prezzo

Classe Energetica

D
D
D
D
D
D
D
D
D
EP globale non rinnovabile:
211.54 kW h/m² anno
EP globale rinnovabile:
211.54 kW h/m² anno
EP invernale del fabbricato:
EP estiva del fabbricato:
Anno di costruzione:
2006
Riscaldamento:
Autonomo
Tipo impianto:
A radiatori
Tipo alimentazione:
Altro

Prezzo ridotto di €1 (5%%)

Ti interessa visionare l'immobile?

Fissa un appuntamento  Fissa un appuntamento

Richiedi informazioni

Clicca su Leggi per aprire l'informativa
* Questi campi sono obbligatori

Calcola il tuo mutuo

Semplice e senza impegno
Anticipo

( % )
Mutuo

( % )

pochi semplici passi

inserisci i tuoi dati
Questionario completato
Grazie per aver richiesto un appuntamento senza impegno con un nostro Consulente del Credito e Assicurativo.

Hai inserito correttamente tutti i dati necessari e a breve riceverai una e-mail con un link da convalidare per inviare i tuoi dati.
Affiliato
Servizi Immobiliari Conero Srl
Via Pastrengo, 5 62017 Porto Recanati (MC)

Il nostro staff


  • Gianluca Bugaro
    Collaboratore

  • Emanuela Bambozzi
    Coordinatrice

  • Monicanunzia Barnabei
    Affiliata

  • Vanessa Cingolani
    Collaboratrice

  • Filippo Di Stanislao
    Affiliato

  • Rosita Filippi
    Collaboratrice

  • Giuseppe Iela
    Affiliato

  • Cristian Regnicolo
    Collaboratore

  • Emanuele Strologo
    Collaboratore

  • Elena Colasante
    Affiliata
Via Pastrengo, 5 62017 Porto Recanati (MC)
Zona: Porto Recanati
Mostra su mappa
Affiliato
Servizi Immobiliari Conero Srl
Via Pastrengo, 5 62017 Porto Recanati (MC)

2026 Tecnocasa Franchising S.p.A. - P. IVA 08365160152 - Via Monte Bianco 60/A 20089 Rozzano (MI). Ogni agenzia ha un proprio titolare ed è autonoma. Privacy policy | Policy utilizzo | Cookie policy