Albergo in vendita

Loreto, Corso Traiano Boccalini
€ 500.000
37 locali 37 locali
1317 Mq 1317 Mq
38 bagni 38 bagni

Albergo in vendita

Loreto, Corso Traiano Boccalini

Descrizione annuncio

Proponiamo in vendita un'opportunità interessante nel cuore del centro storico di Loreto: un Hotel aperto negli anni '30, che continua a operare con il fascino degli anni '80. Situato in una posizione strategica su Corso Traiano Boccalini, l'hotel si trova a pochi passi dalla celebre Basilica, rendendolo un punto di riferimento ideale per i visitatori.

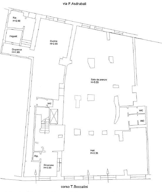
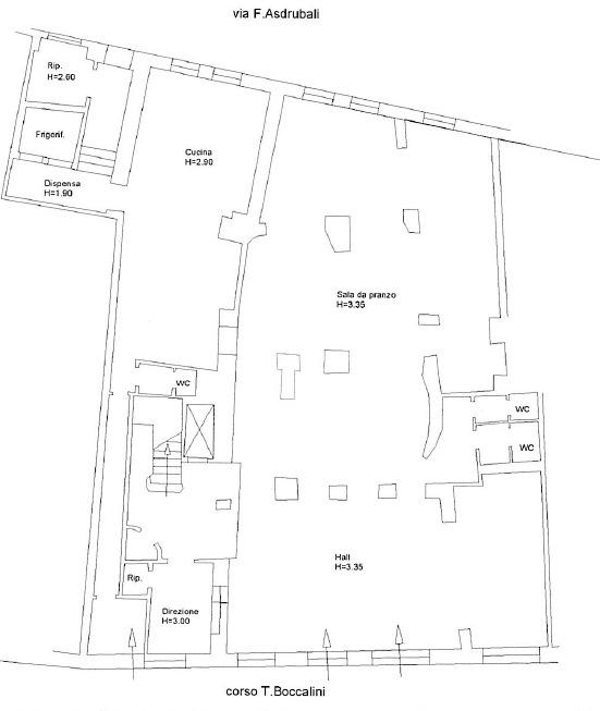
La struttura si sviluppa su tre livelli, tutti facilmente accessibili tramite un comodo ascensore. Al piano terra, gli ospiti sono accolti con calore nella Hall, che separa l'area reception da una stanza direzionale. Qui, la sala d'attesa offre un ambiente confortevole mentre la sala ristorante, con una zona bar, invita a momenti di convivialità. La cucina professionale, ben attrezzata e separata, permette la preparazione di piatti deliziosi per gli ospiti. Due bagni sono disponibili per garantire comfort e praticità. Completa il piano un ampio magazzino.

Al primo e secondo piano, l'hotel offre un totale di 37 camere, capaci di ospitare fino a 76 persone. Le camere, suddivise in singole, doppie, triple e quadruple, sono tutte dotate di bagno interno, rispondendo così a ogni esigenza degli ospiti. Alcune camere vantano una vista panoramica mozzafiato, aggiungendo un tocco di magia al soggiorno.

L'hotel viene venduto completo di arredi, rendendolo pronto per accogliere nuovi proprietari e ospiti senza necessità di ulteriori interventi. E’ possibile riammodernarlo e trasformarlo in un'opportunità ancora più allettante. Con interventi mirati e un piano strategico ben definito, si possono valorizzare le caratteristiche uniche dell'immobile, migliorando sia l'estetica che la funzionalità. L'utilizzo di materiali di alta qualità e soluzioni innovative non solo aumenterà il valore della proprietà, ma offrirà anche un ambiente più confortevole e sostenibile.

Al piano seminterrato, le cantine offrono spazio aggiuntivo per la conservazione di materiali o per altre necessità logistiche.

L'ultimo piano regala dalla terrazza una spettacolare vista su Piazza dei Galli e sui caratteristici tetti di Loreto, offrendo agli ospiti uno scorcio indimenticabile della città.

Questa struttura rappresenta un'opportunità imperdibile per chi desidera investire in un'attività alberghiera ben avviata, situata in una delle località più apprezzate dai turisti per la sua vicinanza alla costa e alle città limitrofe. Con il turismo religioso e la vicinanza al mare, questo hotel è la scelta ideale per chi desidera intraprendere un'attività di successo nel settore turistico.

Seguici su Instagram e Facebook: 'Tecnocasa Porto Recanati'.
Hai bisogno di vendere per acquistare una nuova casa? Contattaci per una consulenza e valutazione gratuita e senza impegno allo 0710961918.

Mostra tutto

Nelle vicinanze

Trasporto pubblico Trasporto pubblico
stazione di Loreto
stazione di Loreto
1,4 Km
Trasporto pubblico
70 m
Ricariche auto elettriche Ricariche auto elettriche
Loreto
40 m
Scuole Scuole
Missione Mariana Mondiale
230 m
Asilo Nido Il Cucciolo
470 m
Istituto Solari
570 m
Scuola Materna Costabianca
1,8 Km
Farmacia Farmacia
Farmacia Salustri
450 m
Farmacia Dr. Dino Mandarelli
2,1 Km
Ospedali Ospedali
Ospedale Loreto
410 m
Supermercati Supermercati
Coop
490 m
Si con Te
820 m
Crai
1,3 Km
Supermercati
1,7 Km
Conad Superstore
1,8 Km
Negozi Negozi
Cutty Sark Fashion
1,1 Km
Negozi
1,6 Km
Bar Bar
Caffè Spezial
410 m
New Bar e Ristorante
1,6 Km
Bar
2,0 Km
Ristoranti Ristoranti
Hotel Giardinetto
10 m
Tacabanda
80 m
Ristorante Pizzeria Euthymia
110 m
Delfino Azzurro
140 m
Cantina del Moro
190 m
Mostra tutto

Caratteristiche

Rif.:
61177455
Piano:
Su più livelli di 3 con ascensore
Totale piani:
3
Condizionamento:
Assente
Ascensore:
Riscaldamento:
Centralizzato
Mostra tutto
Prezzo Prezzo
€ 500.000
Rata mutuo Rata mutuo
€ 2.357 / mese
Spese annue Spese annue
€ 0
Proponi il tuo prezzoProponi il tuo prezzo

Altre caratteristiche

Descrizione dei locali
Bagno Cieco Bagno Con Finestra

Classe Energetica

G
G
G
G
G
G
G
G
G
EP globale non rinnovabile:
311.79 kW h/m² anno
EP globale rinnovabile:
311.79 kW h/m² anno
EP invernale del fabbricato:
EP estiva del fabbricato:
Anno di costruzione:
1970
Riscaldamento:
Centralizzato
Tipo impianto:
Ad aria
Tipo alimentazione:
Aria

Ti interessa visionare l'immobile?

Fissa un appuntamento  Fissa un appuntamento

Richiedi informazioni

Clicca su Leggi per aprire l'informativa
* Questi campi sono obbligatori

Calcola il tuo mutuo

Semplice e senza impegno
Anticipo

( % )
Mutuo

( % )

pochi semplici passi

inserisci i tuoi dati
Questionario completato
Grazie per aver richiesto un appuntamento senza impegno con un nostro Consulente del Credito e Assicurativo.

Hai inserito correttamente tutti i dati necessari e a breve riceverai una e-mail con un link da convalidare per inviare i tuoi dati.
Affiliato
Servizi Immobiliari Conero Srl
Via Pastrengo, 5 62017 Porto Recanati (MC)

Il nostro staff


  • Gianluca Bugaro
    Collaboratore

  • Monicanunzia Barnabei
    Affiliata

  • Matteo Alessandro Ciocan
    Collaboratore

  • Vanessa Cingolani
    Collaboratrice

  • Filippo Di Stanislao
    Affiliato

  • Rosita Filippi
    Collaboratrice

  • Giuseppe Iela
    Affiliato

  • Cristian Regnicolo
    Collaboratore

  • Emanuele Strologo
    Collaboratore

  • Rachele Vecchioli
    Collaboratrice

  • Elena Colasante
    Affiliata
Via Pastrengo, 5 62017 Porto Recanati (MC)
Zona: Porto Recanati
Mostra su mappa
Affiliato
Servizi Immobiliari Conero Srl
Via Pastrengo, 5 62017 Porto Recanati (MC)

2026 Tecnocasa Franchising S.p.A. - P. IVA 08365160152 - Via Monte Bianco 60/A 20089 Rozzano (MI). Ogni agenzia ha un proprio titolare ed è autonoma. Privacy policy | Policy utilizzo | Cookie policy